Detached Property

175 Lake Shore Drive , Toronto

4 Bed
6 Bath
2 Parking
$2,499,000

Details

Property ID
W12826400
Status
For Sale (On market for 40 days)
Property Type
Detached
Style
2-Storey
Area
2500-3000 SqFt
Lot Size
75 X 153.97 Ft.
Parking Spaces
2
Garage Spaces
2
Taxes
$7,254 (2025)
Basement
Finished with Walk-Out
Air Conditioning
Central Air
Heating Type
Forced Air

Description

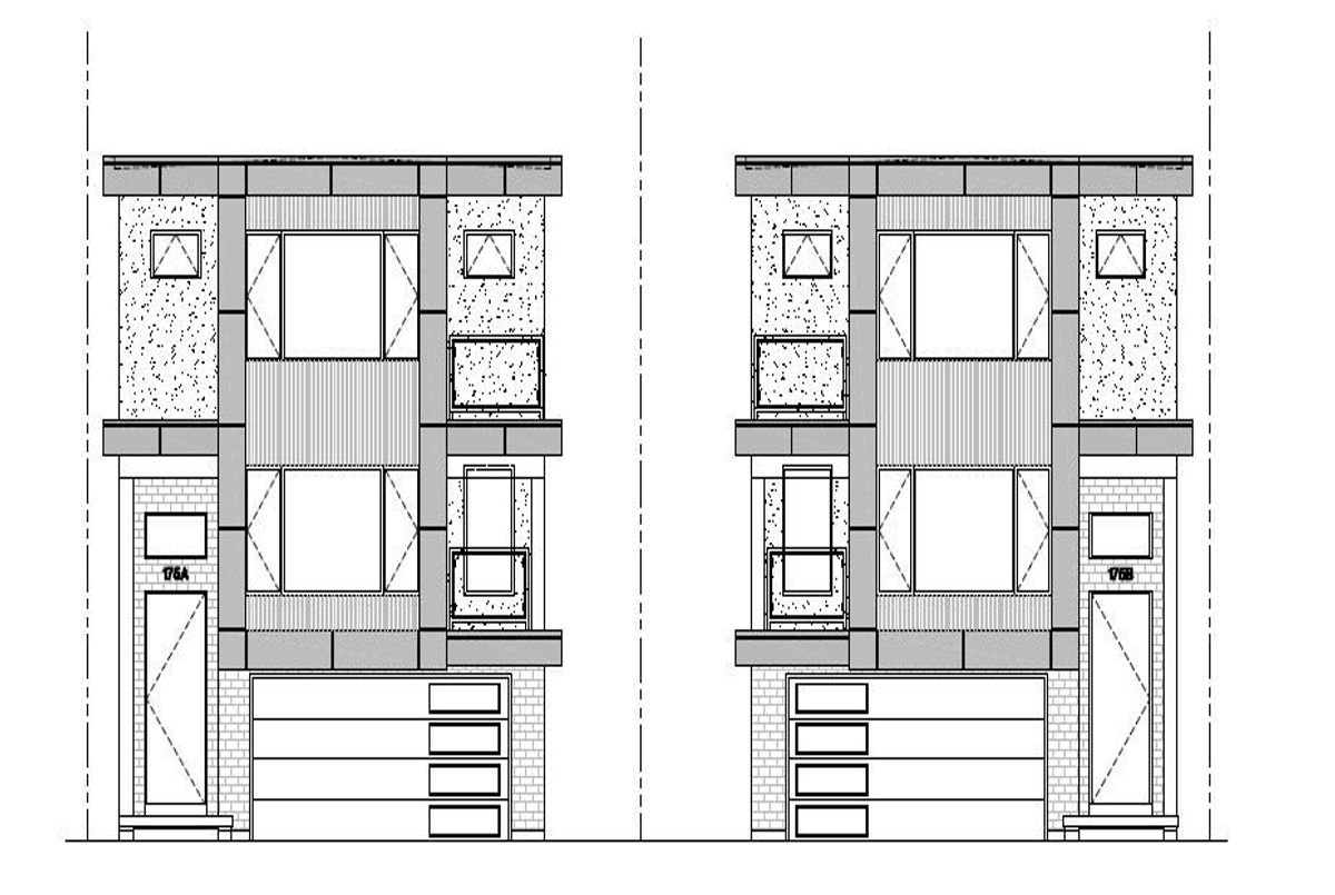
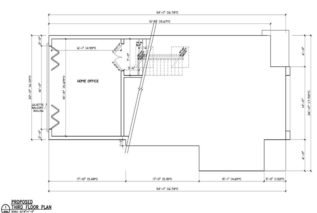
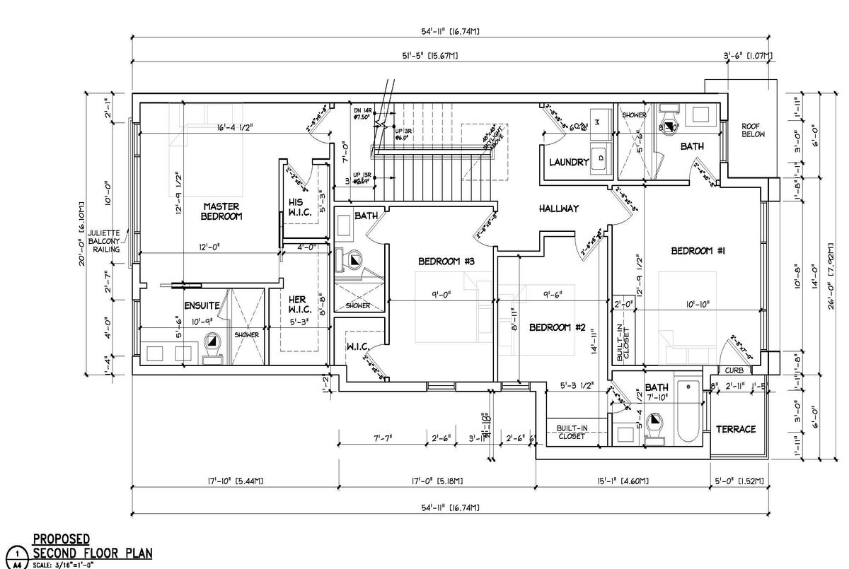
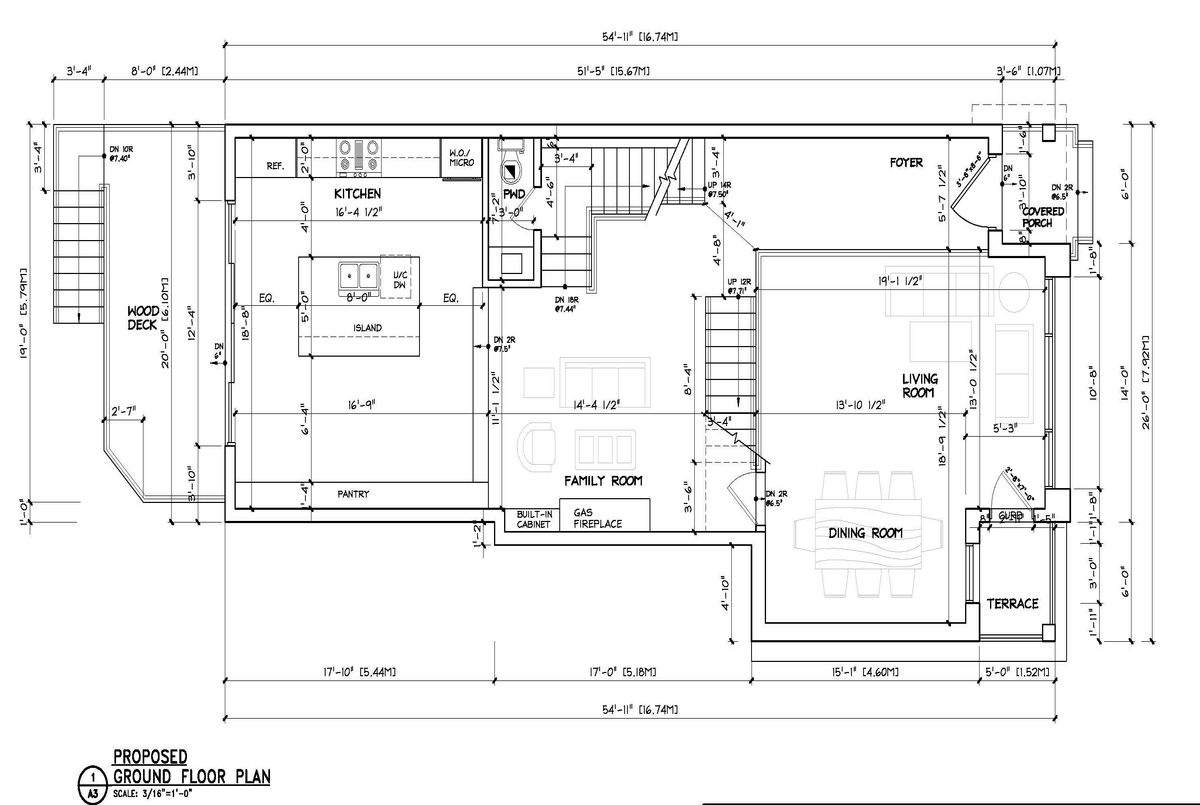
Attention builders!! Severance Approved for this 75 x 150 foot lot to create two Lots of 37.5 x 150 Ft backing onto Rotary Peace Park and overlooking Lake Ontario!! Only Steps from the Lake and neighbourhood Beach! Building Plans ready to build two 2,723 sqft homes with open concept main floor, 4 Bedrooms on 2nd level and a massive 3rd floor fully enclosed Roof Terrace overlooking Lake Ontario! Property is backing onto the park that can be accessed via a gate directly from the backyard! The opportunities are endless with this property offering a perfect open canvas to build two dream homes or lakeside retreat. Fantastic views of park and lake. Conveniently located close to an abundance of family amenities with waterfront trails and sports facilities including Rotary Peace Park, Beach and Outdoor Pool and Colonel Samuel Beach Park. Steps to the waterfront and a small beach. Just a few minutes drive to The QEW & GO Station. Close walking distance to affluent schools, shopping, restaurants, public transportation and so much more! ...

Continue Reading Show Less

Amenities

Location of the Property

175 Lake Shore Drive, Toronto, ON M8V 2A1

Community Sold Statistics

Ave Sold Price

Ave Days On Market

Based on last 90 days transactions for Detached Properties in the New Toronto community.

RE/MAX REALTRON REALTY INC.
(905) 944-8800

You like this property? Receive new, similar ones in your inbox.

We will also update you on other related information such as similar sold properties and market reports

Subscribe Now
Must be logged in to see the sold history
List Date Transaction List Price Sold/Leased Price DOM Status Transaction Date
$
per month
Principal
Down Payment
Balance at Term End

More About 175 Lake Shore Drive

175 Lake Shore Drive is a Residential Property located in the city of Toronto. 175 Lake Shore Drive has been listed For Sale at $2,499,000 since Feb 27 2026. This Detached Detached has 4 bedrooms, 6 bathrooms and is 2500-3000 sqft. Situated in New Toronto neighbourhood , with the nearest intersection being Islington & Lake Shore Drive.

Listing Brokerage: ROYAL LEPAGE SIGNATURE REALTY

}